Ajka Eladó Lakás
CSOK PLUSZ FIX 3%

Ajka - Eladó Lakás

Alapterület
90 m2
Ár
79.000.000 Ft
Hirdetés azonosító
325056

Eladó ÚJ ÉPÍTÉSŰ lakás Ajka- Bakonygyepesen!

Leírás

Eladó ÚJ ÉPÍTÉSŰ lakás Ajka- Bakonygyepesen!

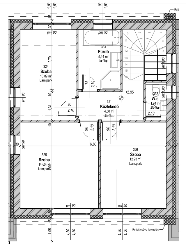
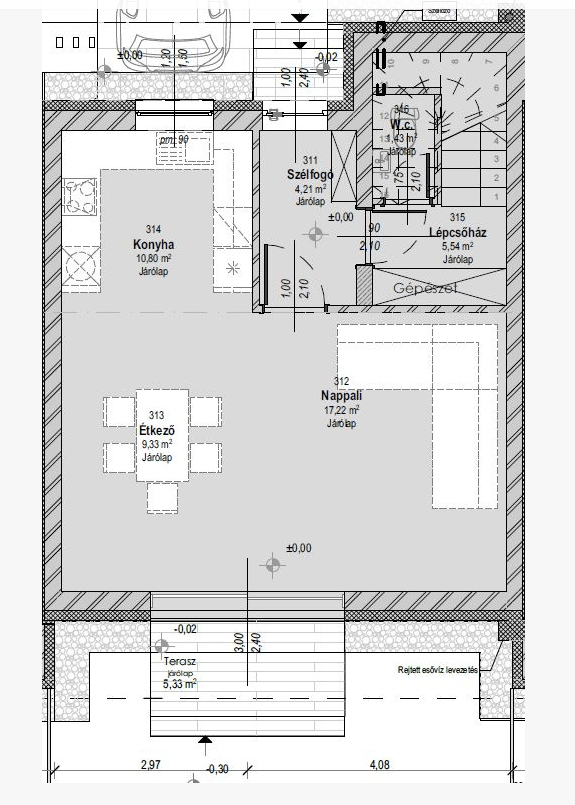
Az ingatlan 4 lakásos társasházban található, a lakás 89,75 m2-es, a hozzá tartozó telek területe 177,65 m2.
3 szoba + nappali kialakítású, belső 2 szintes lakás.
A ház körbekerített , zárt telken helyezkedik el, ahol a lakáshoz felszíni PARKOLÓHELY is tartozik.

Műszaki adatok:
A társasház földszinti teherhordó és térelhatároló falszerkezetei 30 cm vastagsággal, LEIER N+F típusú
falazóblokkból készülnek, míg a válaszfalak 10 cm vastagsággal szintén LEIER válaszfallapokból
épülnek meg.
Födémszerkezet 20 cm vastag monolit vasbeton szerkezet XPS kiegészítő hőszigeteléssel.
Tető kialakítása lapostető.
Homlokzati nyílászárók Spectus 70 típusú belül fehér, kívül antracit színű műanyagszerkezetek 2 rétegű hőszigetelő üvegezéssel ,redőnnyel ellátva.
A ház homlokzati szigetelése 15 cm vastag dryvit EPS 80 hőszigetelő rendszerrel készül.
A társasház fűtése padlófűtéses kialakítású hőszivattyús rendszer.
Az ingatlan burkolatok,szaniterek, belső ajtók, konyhabútor nélkül kerül átadásra!
Bővebb műszaki részletekért, kérem keressen bizalommal!

Kivitelezés várható befejezése: 2025. III. negyedév

Amennyiben hirdetésem felkeltette az érdeklődését, kérem keressen elérhetőségeimen!

Teljeskörű szolgáltatást vállalok a megbízástól a beköltözésig:
- Ingatlanértékesítés
- Ingatlan értékbecslés
- Energetikai tanúsítvány
- Hitelügyintézés, Biztosítás
- Ügyvéd
- Lakberendezés 3D tervezéssel
- Napelemes rendszerek
- Épülettakarítás
- Kivitelezés, felújítás

Hock Adrienn
Ingatlanszakértő, Ingatlanvagyon értékelő, Lakberendező

Kapcsolati adatok

Hock Adrienn

Hock Adrienn

Ingatlanszakértő - Értékbecslő - Lakberendező

+36-70-705 2042

hock.adrienn@harpingatlan.hu

Érdeklődjön az ingatlanról, e-mailben!

Hasonló ingatlanok

Hívás