Királyszentistván Eladó Ház
CSOK PLUSZ FIX 3%

Királyszentistván - Eladó Ház

Alapterület
80 m2
Ár
83.600.000 Ft
Hirdetés azonosító
345040

Új építésű családi házak Királyszentistvánon!

Leírás

Panorámás álomotthon a Bakony és a Balaton kapujában!

Királyszentistvánon eladó egy nettó 80,34 m2-es , ÚJ ÉPÍTÉSŰ, energiatakarékos, egy szintes családi ház, amely a modern technológiát ötvözi a természet közelségével.

Miért ezt válassza?

✅ Minimális Rezsi: 5 kW-os szigetüzemű napelem, hőszivattyús padlófűtés és klíma gondoskodik a kényelemről és az alacsony költségekről.
✅ Személyre Szabható: A burkolatokat és a beltéri ajtókat saját ízlése szerint választhatja ki (az ár tartalmazza a keretösszegeket!).
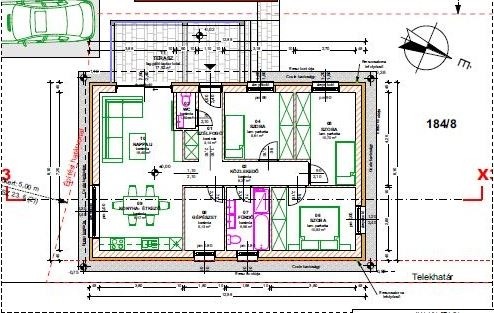
✅ Ideális Elrendezés: Tágas amerikai konyhás nappali, 3 kényelmes szoba és egy hatalmas, 17 m²-es nyugati fekvésű terasz.

A 850 m2-es telken 2 különálló családi ház épül, a saját telek épületenként 425 m2-es.

Az ingatlanok műszaki tartalma:

-30 cm Ytong falazat
-15 cm grafitos homlokzatszigetelés
-30 cm rockwool kőzetgyapot födémszigetelés
-15 cm aljzat szigetelés
-A fűtés: Hőszivattyús padlófűtés vagy padlófűtés elektromos kazánnal, napelemmel
-Klíma, wifivel vezérelhető
-3 rétegű hőszigetelt üvegezésű, műanyag nyílászárók
-Burkolatok hidegburkolat bruttó 11.000ft/m2, melegburkolat bruttó 8.000ft/m2-ig, beltéri ajtók bruttó 70.000,-/db a vételár tartalmazza.

2026-ban ajándékba jár az ingatlanokhoz 5kW-os sziget üzemű napelem rendszer és annak telepítése.

Átmenő forgalom mentes, zsákutcában épülnek az ingatlanok, az utca hamarosan aszfaltos burkolatot kap, jelenleg murvás úton megközelíthető a terület.

Az elrendezés igény szerint variálható, így valóban a saját ízlésére formálhatja új otthonát.
Az alapterület egy szintes: 80 m2- 120 m2-ig, a tetőtér beépítéses 90 m2-től alakítható( 1.045.000,-Ft/m2), 2-5 szobáig, akár garázzsal is kérhetők az ingatlanok.

A kivitelezések várható kezdése: 2026. február 20.

A vételár a konyhabútort nem tartalmazza!

Az induló projekt várható átadási ideje: 2027. március vége

Bővebb információért, további műszaki tartalomért és a még elérhető ingatlanokért keressenek bizalommal!

Ne maradjon le erről a hibátlan választásról! Akár családnak, akár nyaralónak is tökéletes befektetés.

Hívjon még ma, és nézzük meg együtt a helyszínt!

Teljeskörű szolgáltatást vállalok a megbízástól a beköltözésig:
- Ingatlanértékesítés
- Ingatlan értékbecslés
- Energetikai tanúsítvány
- Hitelügyintézés, Biztosítás
- Ügyvéd
- Lakberendezés 3D tervezéssel
- Épülettakarítás
- Kivitelezés, felújítás
- Villamos biztonsági felülvizsgálat

Hock Adrienn
Ingatlanszakértő, Ingatlanvagyon értékelő, Lakberendező


Kapcsolati adatok

Hock Adrienn

Hock Adrienn

Ingatlanszakértő - Értékbecslő - Lakberendező

+36-70-705 2042

hock.adrienn@harpingatlan.hu

Érdeklődjön az ingatlanról, e-mailben!

Hasonló ingatlanok

Hívás