Veszprém Eladó Ház
CSOK PLUSZ FIX 3%

Veszprém - Eladó Ház

Alapterület
90 m2
Ár
106.000.000 Ft
Hirdetés azonosító
340912

Eladó új építésű családi ház Gyulafirátóton!

Leírás

Eladó új építésű családi ház Gyulafirátóton!

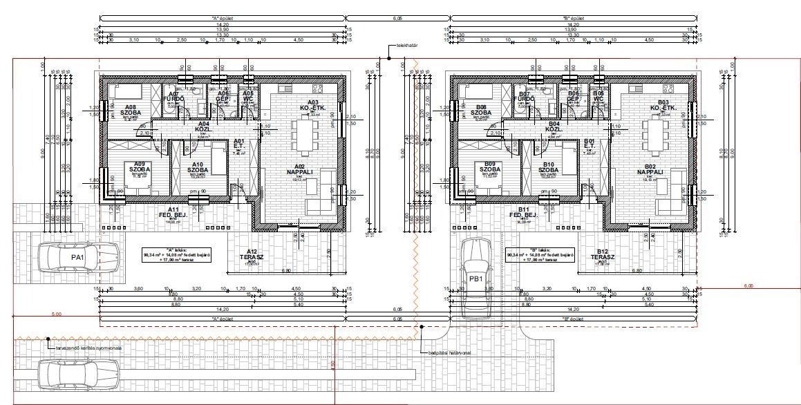
A 910 m²-es telken két különálló családi ház kerül kialakításra saját kerttel.

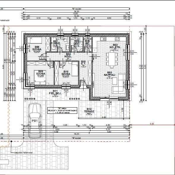
Az épület 90,37 m2-es, 3 szoba + nappali kialakítású, 14,56 m2-es fedett bejáróval és 17 m2-es terasszal.

Elosztása:
- nappali/konyha/étkező: 36,34 m2
- szoba: 11,1 m2
- szoba: 9,9 m2
- szoba: 9,52 m2
- fürdőszoba: 5,2 m2
- gépészeti helység: 3,6 m2
- közlekedő: 4,95 m2
- előtér: 7,56 m2
- WC: 2,2 m2
---------------------------------------------
- fedett bejáró: 14,56 m2
- terasz: 17 m2

A projekt főbb műszaki paraméterei:
- 30-as tégla falazat
- 15 cm hungarocell szigetelés, fehér színű homlokzati vakolattal.
- monoblokkos, hőszivattyús fűtésrendszer, padlófűtéssel (a használati melegvizet is
előállítja)
- Antracit Leier Toscana cserép héjazat
- hő,- és hangszigetelt, 3 rétegű üvegezéssel ellátott műanyag nyílászárók.

A vételár a kulcsrakész állapotra vonatkozik, és magában foglalja a térkövezett gépkocsibeálló és a murvás behajtó kialakítását is.

Tereprendezést tartalmazza az ár, de a füvesítést és a telek körbe kerítését nem!

Az ingatlan konyhabútor nélkül kerül átadásra!

Bővebb műszaki részletekért, kérem keressen bizalommal!

Kivitelezés várható befejezése: 2026. III. negyedév

Amennyiben hirdetésem felkeltette az érdeklődését, kérem keressen elérhetőségeimen!

Teljeskörű szolgáltatást vállalok a megbízástól a beköltözésig:
- Ingatlanértékesítés
- Ingatlan értékbecslés
- Energetikai tanúsítvány
- Hitelügyintézés, Biztosítás
- Ügyvéd
- Lakberendezés 3D tervezéssel
- Napelemes rendszerek
- Épülettakarítás
- Kivitelezés, felújítás
- Villamos biztonsági felülvizsgálat

Hock Adrienn
Ingatlanszakértő, Ingatlanvagyon értékelő, Lakberendező

Kapcsolati adatok

Hock Adrienn

Hock Adrienn

Ingatlanszakértő - Értékbecslő - Lakberendező

+36-70-705 2042

hock.adrienn@harpingatlan.hu

Érdeklődjön az ingatlanról, e-mailben!

Hasonló ingatlanok

Hívás